NOSOTROS

ARQ. ERIK GUTH

ARQ. ERIK GUTH

ARQ. MARIANA IRIGOYEN

ARQ. MARIANA IRIGOYEN

ARQ. LUCIANO MONZA

ARQ. LUCIANO MONZA

QUE OFRECEMOS

Pulsar botones para ver contenido.

Ofrecemos expertise y know how en la especialidad más compleja, cambiante y costosa de la arquitectura.

Consideramos que los condicionantes de la atención médica, de las relaciones organizacionales, y del equipamiento médico y las instalaciones, no pueden ser abordados desde la improvisación.

Sabemos que las características edilicias condicionan fuertemente la calidad, eficiencia e imagen de un establecimiento de salud, así como sus costos operativos y de mantenimiento.

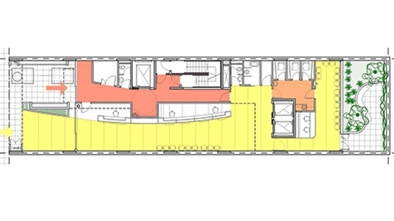
Consiste en la evaluación de la situación y del estado del recurso físico existente de una institución en funcionamiento, por medio de la realización de planos y fichas técnicas, el análisis de accesos, esquemas circulatorios, ubicación y diseño de servicios, y de los datos de producción en relación con la capacidad instalada.

El diagnóstico institucional permite saber cuál es el estado del recurso físico y si es acorde a la demanda y a la producción del establecimiento.

1.069.938 m² realizados

Consiste en la caracterización, cualificación y cuantificación del recurso físico necesario para una institución en función de las definiciones de objetivos y políticas, del diagnóstico institucional y de la demanda esperada.

Como resultado de esta etapa se arriba al programa de necesidades donde están cuantificados y dimensionados en cantidad y superficie la totalidad de los locales y servicios, acompañados por una estimación de costos de inversión.

726.234 m² realizados

Consiste en establecer, generalmente para un establecimiento existente, cómo debería ser a futuro en función de las definiciones emanadas de la planificación y programación.

A partir de las políticas y prioridades de la institución, la capacidad de inversión y los requerimientos mínimos de capacidad instalada para mantener en funcionamiento el establecimiento, se define la secuencia temporal de obras y tareas, con los costos de cada etapa para llegar al modelo espacial planteado.

269.229 m² realizados

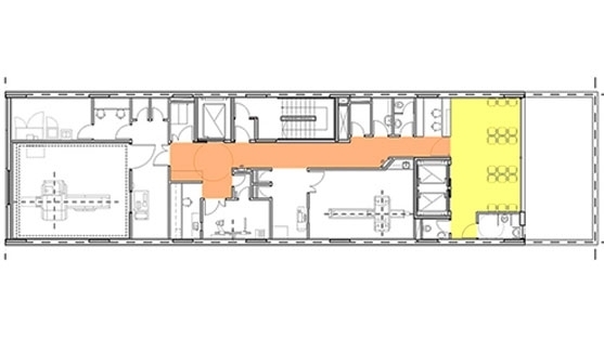
Consiste en la definición espacial, generalmente para un establecimiento nuevo, del macrosistema físico a partir de las determinaciones planteadas en la planificación y programación.

Se realizan croquis preliminares y esquemas de funcionamiento con sectorización por grandes áreas y organización circulatoria, donde se verifican distintas alternativas de resolución en función de las condicionantes de terreno, normativas, etapas, futuros crecimientos, etc.

658.002 m² realizados

Consiste en ratificar, ajustar y desarrollar el estudio de factibilidad o la etapa correspondiente del plan maestro.

Se adoptan definiciones estructurales y constructivas y se incorpora una ingeniería básica de las instalaciones.

Se adoptan definiciones estructurales y constructivas y se incorpora una ingeniería básica de las instalaciones.

562.308 m² realizados

Consiste en el desarrollo de la documentación de obra, también llamada proyecto de detalle, necesaria para llevar adelante la construcción de la obra. Abarca la estructura y la obra civil, la totalidad de las instalaciones, las carpinterías y los equipamientos.

Se obtiene como resultado planos generales y de detalle en distintas escalas, fichas técnicas, fichas de locales y pliegos de condiciones generales y especificaciones técnicas.

393.449 m² realizados

Los últimos avances tecnológicos nos han llevado a repensar la forma de desarrollar nuestros proyectos incorporando la metodología BIM.

El uso de esta herramienta nos ha permitido diseñar con mayor precisión y rapidez, abordando desde un principio arquitectura, estructura e instalaciones, con el respectivo estudio de interferencias, reduciendo así los errores y posteriores costos en la obra.

En una disciplina tan compleja como la nuestra, la coordinación constante entre todos los actores implicados utilizando modelos de pre - construcción virtual es fundamental para lograr la buena resolución de los proyectos, la operación del edificio y las posteriores ampliaciones y/o modificaciones que puedan surgir.

Consiste en la dirección y control del desarrollo de la construcción, de acuerdo al proyecto, su cotización y la contratación de las obras.

Se realizan visitas periódicas –generalmente diarias–, se resuelven dudas de la empresa constructora o de sus subcontratistas, se hacen ajustes de proyecto en razón de cambios eventuales, y se certifican las tareas realizadas por la/s empresa/s.

161.202 m² realizados

QUE OFRECEMOS

Ofrecemos expertise y know how en la especialidad más compleja, cambiante y costosa de la arquitectura.

Consideramos que los condicionantes de la atención médica, de las relaciones organizacionales, y del equipamiento médico y las instalaciones, no pueden ser abordados desde la improvisación.

Sabemos que las características edilicias condicionan fuertemente la calidad, eficiencia e imagen de un establecimiento de salud, así como sus costos operativos y de mantenimiento.

Consiste en la evaluación de la situación y del estado del recurso físico existente de una institución en funcionamiento, por medio de la realización de planos y fichas técnicas, el análisis de accesos, esquemas circulatorios, ubicación y diseño de servicios, y de los datos de producción en relación con la capacidad instalada.

El diagnóstico institucional permite saber cuál es el estado del recurso físico y si es acorde a la demanda y a la producción del establecimiento.

1.069.938 m² realizados

Consiste en la caracterización, cualificación y cuantificación del recurso físico necesario para una institución en función de las definiciones de objetivos y políticas, del diagnóstico institucional y de la demanda esperada.

Como resultado de esta etapa se arriba al programa de necesidades donde están cuantificados y dimensionados en cantidad y superficie la totalidad de los locales y servicios, acompañados por una estimación de costos de inversión.

726.234 m² realizados

Consiste en establecer, generalmente para un establecimiento existente, cómo debería ser a futuro en función de las definiciones emanadas de la planificación y programación.

A partir de las políticas y prioridades de la institución, la capacidad de inversión y los requerimientos mínimos de capacidad instalada para mantener en funcionamiento el establecimiento, se define la secuencia temporal de obras y tareas, con los costos de cada etapa para llegar al modelo espacial planteado.

269.229 m² realizados

Consiste en la definición espacial, generalmente para un establecimiento nuevo, del macrosistema físico a partir de las determinaciones planteadas en la planificación y programación.

Se realizan croquis preliminares y esquemas de funcionamiento con sectorización por grandes áreas y organización circulatoria, donde se verifican distintas alternativas de resolución en función de las condicionantes de terreno, normativas, etapas, futuros crecimientos, etc.

658.002 m² realizados

Consiste en ratificar, ajustar y desarrollar el estudio de factibilidad o la etapa correspondiente del plan maestro.

Se adoptan definiciones estructurales y constructivas y se incorpora una ingeniería básica de las instalaciones.

Se adoptan definiciones estructurales y constructivas y se incorpora una ingeniería básica de las instalaciones.

562.308 m² realizados

Consiste en el desarrollo de la documentación de obra, también llamada proyecto de detalle, necesaria para llevar adelante la construcción de la obra. Abarca la estructura y la obra civil, la totalidad de las instalaciones, las carpinterías y los equipamientos.

Se obtiene como resultado planos generales y de detalle en distintas escalas, fichas técnicas, fichas de locales y pliegos de condiciones generales y especificaciones técnicas.

393.449 m² realizados

Los últimos avances tecnológicos nos han llevado a repensar la forma de desarrollar nuestros proyectos incorporando la metodología BIM.

El uso de esta herramienta nos ha permitido diseñar con mayor precisión y rapidez, abordando desde un principio arquitectura, estructura e instalaciones, con el respectivo estudio de interferencias, reduciendo así los errores y posteriores costos en la obra.

En una disciplina tan compleja como la nuestra, la coordinación constante entre todos los actores implicados utilizando modelos de pre - construcción virtual es fundamental para lograr la buena resolución de los proyectos, la operación del edificio y las posteriores ampliaciones y/o modificaciones que puedan surgir.

Consiste en la dirección y control del desarrollo de la construcción, de acuerdo al proyecto, su cotización y la contratación de las obras.

Se realizan visitas periódicas –generalmente diarias–, se resuelven dudas de la empresa constructora o de sus subcontratistas, se hacen ajustes de proyecto en razón de cambios eventuales, y se certifican las tareas realizadas por la/s empresa/s.

161.202 m² realizados

TRABAJOS

121 - PROTOTIPOS DE CENTROS DE SALUD PROVINCIA DE NEUQUÉN

Neuquén
- 2025

Superficie cubierta: 5.604 m2

Comitente: Gobierno de la Provincia de Neuquén

Proyecto: ArquiSalud Guth-Irigoyen-Monza

Colaboradores: Arq. Silvina López Martín, Arq. Pedro Salgado, Arq. Ornella Della Vecchia, Arq. Micaela Lentino, Arq. Clara Bonnet, Arq. Florencia Aceto, Arq. Samanta Cataldi, Arq. Magdalena Mitidiero, Arq. Marcelo Gallego, Arq. Marile Oviedo

Asesores: Ing. Marcelo Rufino (Estructura), Echevarría Romano (Inst. Termomecánica), Estudio Giarini (Inst. Sanitaria, Gas e Incendio), Ing. Saúl Panigo (Inst. Eléctrica), Ing. Bernardo Kaplan (Tensiones Débiles), Bioing. Edgardo Díaz (Gases Médicos)

117 - HOSPITAL UNIVERSITARIO DE CLÍNICAS DE SANTIAGO DEL ESTERO

La Banda, Santiago del Estero
- 2021/2025

Superficie cubierta: 17.000 m2

Comitente: Mijovi y Provincia de Santiago del Estero

Proyecto: ArquiSalud Guth-Irigoyen-Monza

Colaboradores: Arq. Silvina López Martín, Arq. Micaela Lentino, Arq. Pedro Salgado, Arq. Ornella Della Vecchia, Arq. Antonella Rossi, Arq. Clara Bonnet, Arq. Silvina Barbe

Asesores: AFT Arquitectos (Fachadas), Ing. Roberto Bonelli (Est. Hormigón Armado), Ing. Esteban Gutiérrez (Est. Metálica), Echevarría Romano (Inst. Termomecánica), Estudio Giarini (Inst. Sanitaria, Gas e Incendio), Estudio Grinner (Inst. Eléctrica), Ing. Bernardo Kaplan (Tensiones Débiles)

116 - MÓDULOS HOSPITALARIOS COVID-19


- 2020

Superficie cubierta: Variable

Anteproyecto: ArquiSalud Guth-Irigoyen-Monza

Colaboradores: Arq. Silvina López Martín, Arq. Micaela Lentino, Arq. Pedro Salgado, Arq. Ornella Della Vecchia

Asesores: GNBA Consultores

115 - FUNDACIÓN FAVALORO CENTRO CIRUGÍA AMBULATORIA

Buenos Aires
- 2018/2024

Superficie cubierta: 2.050 m2

Comitente: Fundación Favaloro

Estudio de Factibilidad: Gerencia de Inmuebles y Servicios de Soporte de Fundación Favaloro

Proyecto: ArquiSalud Guth-Irigoyen-Monza

Colaboradores: Arq. Silvina López Martín, Arq. Pedro Salgado, Arq. Micaela Lentino, Arq. Ornella Della Vecchia

Asesores: Ing. Marcelo Rufino (Estructuras), Echevarria Romano (Instalación Termomecánica), Estudio Giarini (Instalación Sanitaria, Gas e Incendio), Ing. Sergio Díaz (Instalación Eléctrica), Virginia San Martín (Normativa)

112 - CENTRO EDUCATIVO TERAPÉUTICO MENDEZ DE ANDES

Buenos Aires
- 2017/2019

Superficie cubierta: 570 m2

Comitente: Condominio Rocino

Proyecto: ArquiSalud Guth-Irigoyen-Monza

Colaboradores: Arq. Silvina López Martín, Arq. Pedro Salgado, Arq. Micaela Lentino

Asesores: Ing. Raúl Ferrero (Estructura), Saeneas (Instalación Termomecánica), Estudio Giarini (Instalación Sanitaria y Contra Incendio), Ing. Sergio Díaz (Instalación Eléctrica), Estudio Virginia San Martín (Normativa GCBA)

111 - CENTROS MEDICOS OSPSA

Buenos Aires
- 2016/2025

Superficie cubierta: 12.000 m2

Comitente: OSPSA y Quba Habitat Urbano

Proyecto: ArquiSalud Guth-Irigoyen-Monza

Colaboradores: Arq. Silvina López Martín, Arq. Pedro Salgado, Arq. Ornella Della Vecchia, Arq. Micaela Lentino, Arq. Antonella Rossi y Arq. Clara Bonnet

Asesores: Ing. Marcelo Rufino (Estructura), Ing. Saúl Panigo (Instalación Eléctrica), Saeneas (Instalación Termomecánica), LyP (Instalación Sanitaria y Contra Incendio), Aselec (Instalación Corrientes Débiles), Estudio Vozzi (Instalación Gases Médicos), Decodificación Urbana (Normativa GCBA), CM+D (Normativa Salud)

110 - HOSPITAL TERMAS DE RIO HONDO

Termas de Río Hondo, Santiago del Estero
- 2016/2019

Superficie cubierta: 6.200 m2

Comitente: Mijovi y Provincia de Santiago del Estero

Proyecto: ArquiSalud Guth-Irigoyen-Monza

Colaboradores: Arq. Silvina López Martín, Arq. Pedro Salgado, Arq. Micaela Lentino, Arq. Andrés Venezia (Renders)

Asesores: Ing. Roberto Bonelli (Estructuras), Arq. Carlos López (Instalación Termomecánica), GNBA Beverati (Instalación Sanitaria, Gas e Incendio), Ing. Saúl Panigo (Instalación Eléctrica), Ing. Bernardo Kaplan (Tensiones Débiles), Arq. María José Leveratto (Sustentabilidad)

108 - CENTRO DE REHABILITACIÓN PILAR

Pilar, Buenos Aires
- 2016/2025

Superficie cubierta: 10.400 m2

Comitente: OSMMEDT

Proyecto y Dirección: ArquiSalud Guth-Irigoyen-Monza

Colaboradores: Arq. Silvina López Martín. Arq. Pedro Salgado. Arq. Micaela Lentino. Arq. Andrés Venezia (renders), Arq. Esteban Bomba, Arq. Ornella Della Vecchia

Asesores: Ing. Marcelo Rufino (Estructuras), Arq. Carlos López (Instalación Termomecánica), Estudio Giarini (Instalación Sanitaria, Gas e Incendio), Ing. Atilio Ricca (Instalación Eléctrica), Ing. Bernardo Kaplan (Tensiones Débiles), Arq. María José Leveratto (Sustentabilidad), Dra. Alicia Valdez (Medicina Física y Rehabilitación)

106 - CENTROS DE DIAGNÓSTICO POR IMÁGENES

Buenos Aires
- 2015/2021

Superficie cubierta: 3.300 m2

Comitente: OSMMEDT

Proyecto y Dirección: ArquiSalud Guth-Irigoyen-Monza

Colaboradores: Arq. Silvina López Martín, Arq. Belén Settembrino, Arq. Andrés Venezia (Renders), Arq. Marcelo Gallego, Arq. Pablo Ojeda

Asesores: Ing. Enrique Sgrelli (Estructuras), Arq. Carlos López (Instalación Termomecánica), Estudio Giarini (Instalación Sanitaria, Gas e Incendio), Ing. Saúl Panigo (Instalación Eléctrica), Virginia San Martín (Normativa)

102 - CENTRO INTEGRAL DE SALUD LA BANDA

La Banda, Santiago del Estero
- 2011/2015

Superficie cubierta: 15.000 m2

Comitente: UTE Lo Bruno, Conorvial, Mijovi y Provincia de Santiago del Estero

Proyecto y Dirección: ArquiSalud Guth-Irigoyen-Monza

Colaboradores: Arq. Silvina López Martín, Arq. Florencia Aceto, Arq. Juan Granada, Arq. Alma Díaz, Arq. Guadalupe Peyré, Arq. Andrés Venezia (Renders)

Asesores: Ing. Ricardo Lorefice (Estructuras), Ing. José Azzaro (Instalación Termomecánica), Arq. Jorge Carelli (Instalación Sanitaria, Gas e Incendio), Ing. César Cantou (Instalación Eléctrica y Tensiones Débiles), Ing. Carlos Vozzi (Instalación Gases Médicos), Ing. Rodolfo Gareis (Acústica)

97 - CENTROS REGIONALES DE HEMOTERAPIA

Buenos Aires y Santiago del Estero
- 2010/2011

Superficie cubierta: 1800 m2

Comitente: Ministerio de Defensa de la Nación y Ministerio de Salud de Santiago del Estero

Proyecto: ArquiSalud Guth-Irigoyen-Monza

Colaboradores: Arq. Mariano Sosa, Arq. Silvina López Martín, Arq. Florencia Aceto

Asesores: Ing. Ricardo Lorefice (Estructuras), GNBA Gaviño Nieto (Instalación Termomecánica), GNBA Beverati (Instalación Sanitaria, Gas e Incendio), GNBA Ansaldo (Instalación Eléctrica)

96 - CENTRO INTEGRAL TRATAMIENTO ENFERMEDAD ALZHEIMER

Buenos Aires
- 2010/2015

Superficie cubierta: 2.934 m2

Comitente: AFI Asociación Filantrópica Israelita

Proyecto y Dirección: Estudio Frank y ArquiSalud Guth-Irigoyen-Monza

Colaboradores: Arq. Silvina López Martín, Arq. Florencia Aceto, Arq. Mariano Sosa, Nadia Cox, y Arq. Andrés Venezia (renders).

Asesores: Ing. Marcelo Rufino (Estructuras), Ing. José Azzaro (Instalación Termomecánica), Arq. Jorge Carelli (Instalación Sanitaria, Gas e Incendio), Ing. César Cantou (Instalación Eléctrica y Tensiones Débiles).

95 - HOSPITAL REGIONAL RAMÓN CARRILLO

Santiago del Estero
- 2009/2015

Superficie cubierta: 6.400 m2

Comitente: Conorvial y Provincia de Santiago del Estero

Proyecto: ArquiSalud Guth-Irigoyen-Monza

Colaboradores: Arq. Silvina López Martín, Arq. Florencia Aceto, Arq. Juan Granada, Arq. Alma Díaz, Arq. Juan Pablo Pagano, Arq. Lucía Guerberoff.

Asesores: Ing. Ricardo Lorefice (Estructuras), GNBA Gaviño Nieto e Ing. José Azzaro (Instalación Termomecánica), GNBA Beverati y Arq. Jorge Carelli (Instalación Sanitaria, Gas e Incendio), GNBA Ansaldo e Ing. César Cantou (Instalación Eléctrica), Ing. Carlos Vozzi (Instalación Gases Médicos).

94 - HOSPITAL BRITÁNICO OBRAS VARIAS

Buenos Aires
- 2009/2012

Superficie cubierta: 3.000 m2

Comitente: Hospital Británico

Anteproyecto y Dirección: Arq. Guy Grant (Hospital Británico)

Proyecto: ArquiSalud Guth-Irigoyen-Monza

Colaboradores: Arq. Mariano Sosa, Arq. Silvina López Martín, Arq. Juan Pablo Pagano, Arq. Florencia Aceto, Arq. Federico Kulekdjian y Arq. Andrés Venezia (renders).

Asesores: Ing. Marcelo Rufino (Estructuras), GNBA Gaviño Nieto y Arq. Carlos López (Instalación Termomecánica), GNBA Beverati (Instalación Sanitaria, Gas e Incendio), GNBA Ansaldo e Ing. Saul Panigo (Instalación Eléctrica).

93 - HOSPITAL RIVADAVIA

Buenos Aires
- 2008

Superficie cubierta: 102.000 m2

Comitente: Gobierno de la Ciudad de Buenos Aires

Anteproyecto: ArquiSalud Guth-Irigoyen-Monza, Arq. Adrián Mendes y Arqs. Mariana Gastellu y Paula Gómez Ortega

Colaboradores: Morena Giordano, Alejandro Nervegna, María Victoria Barragán, Florencia Aceto, Florencia Miglierina, Arq. Juan Pablo Pagano, Arq. Nadia Cox, Martín Saporiti, Arq. Silvina López Martín, Leandro Reati y Arq. Andrés Venezia (renders)

92 - HOGAR HIRSCH

San Miguel, Buenos Aires
- 2008

Superficie cubierta: 12.262 m2

Comitente: AFI Asociación Filantrópica Israelita

Anteproyecto: ArquiSalud Guth-Irigoyen-Monza

Colaboradores: Arq. Juan Pablo Pagano, Arq. Silvina López Martín y Arq. Eduardo Hagopián (renders).

90 - EDIFICIO DE INVESTIGACIÓN MACN

Buenos Aires
- 2007/2010

Superficie cubierta: 10.822 m2

Comitente: MACN y CONICET

Proyecto: San Román Pujol y ArquiSalud Guth-Irigoyen-Monza

Coordinador: MACN Arq. Carlos Fabricante

Colaboradores: Arqs. Juan Pablo Pagano, Silvina López Martín, Florencia Aceto, Mariano Sosa, Julia Domínguez, María Clara Mollura, Alina Mariani y Andrés Venezia (renders).

Asesores: Ing. Marcelo Rufino (Estructuras), Ing. José Azzaro (Instalación Termomecánica), Ing. Jorge Benbassat (Instalación Sanitaria, Gas e Incendio), Ing. Jon Laburu (Instalación Eléctrica), Ings. Sáchez Quintana y Basso (Acústica), Ing. Eduardo Murature (Ingeniería de Detalle), Arq. Laura Caputo (Cómputo y Presupuesto), Arq. Flavia Rinaldi (Patrimonio).

88 - NUEVO HOSPITAL RAWSON

San Juan, San Juan
- 2006/2008

Superficie cubierta: 23.000 m2

Comitente: Cicon, Calcaterra y Constructora SanJosé

Proyecto Ejecutivo: ArquiSalud Guth-Irigoyen-Monza

Colaboradores: Arq. Silvina López Martín, Arq. Virginia Isaacson y Arq. Julia Domínguez.

Asesores: Ingetec (Instalaciones)

87 - FLENI 2010 SEDE ESCOBAR

Buenos Aires
- 2006

Superficie cubierta: 22.296 m2

Comitente: FLENI

Anteproyecto: ArquiSalud Guth-Irigoyen-Monza, Estudio Parysow Parysow Schargrodsky Parysow, y Arq. Gabriel Galván

Colaboradores: Paola Cebey, Sofía Fernández Rosso, Arq. Maria Fernanda González, Arq. Virginia Isaacson y Arq. Silvina López Martín.

Asesores: Ing. José Blanco (Estructuras), Arq. Carlos López (Instalación Termomecánica), GNBA Beverati (Instalación Sanitaria, Gas e Incendio), Ing. Armando Negrotti (Instalación Eléctrica), Ing. Carlos Vozzi (Instalación Gases Médicos), Arq. Eduardo Hagopián (Gestión Ambiental).

72 - CLÍNICA SAN ISIDRO LABRADOR

Chacabuco, Buenos Aires
- 1999/2000

Superficie cubierta: 2.750 m2

Comitente: Dr. Tomino, Ing Natta

Proyecto: Erik Guth & Luciano Monza arquitectos

Asesores: Ing. Gabriel Pena (Instalación Termomecánica), GNBA Beverati (Instalación Sanitaria, Gas e Incendio).

70 - HOSPITAL BRITÁNICO, EDIFICIO ANEXO

Buenos Aires
- 1998

Superficie cubierta: 1.620 m2

Comitente: Hospital Británico

Anteproyecto y Dirección: Arq. Guy Grant (Hospital Británico)

Proyecto: Erik Guth & Luciano Monza arquitectos

Colaboradores: Arq. Fernando Chamoles, Arq. Tulio Ginés.

Asesores: Ing. José Blanco (Estructuras), GNBA Gaviño Nieto (Instalación Termomecánica), GNBA Beverati (Instalación Sanitaria, Gas e Incendio), GNBA Ansaldo (Instalación Eléctrica), Ing. Marcos Palazo (Instalación Gases Médicos).

29 - FUNDACIÓN FAVALORO

Buenos Aires
- 1979/1985

Superficie cubierta: 15.000 m2

Comitente: Fundación Favaloro

Proyecto y Direccion: Arq. Carlos Quaglia y Arq. Erik Guth.

Gerenciamiento: Proel Sudamericana

Colaboradores: Arq. Víctor Chechelnitzky, Arq. Hugo Ubeda, Arq. Guillermo Ures y Oscar Candioti.

Asesores: Ing. Adrián Comelli (Estructuras), Ings. Dardik y Laborde (Estudio de Suelos), Ing. Diego Alfieri (Instalación Termomecánica), Salvador Contarino (Instalación Sanitaria), Raúl Penafiel (Instalación Gas), Ing. Alberto Egea (Instalación Eléctrica), Ings. Tibiletti y Barbieri (Instalación Gases Médicos).

LISTA DE TRABAJOS

  • 121. PROTOTIPOS DE CENTROS DE SALUD PROVINCIA DE NEUQUÉN
    - Neuquén, 2025
  • 120. HOGAR Y CENTRO DE DÍA LOS JARDINES DE RANALEGH
    - Buenos Aires, 2022/2023
  • 119. CENTRO INTEGRAL KALÉN
    - Río Cuarto, Córdoba, 2022/2023
  • 118. CENTRO DE REHABILITACIÓN REVERIE
    - Pilar, Buenos Aires, 2021/2025
  • 117. HOSPITAL UNIVERSITARIO DE CLÍNICAS DE SANTIAGO DEL ESTERO
    - La Banda, Santiago del Estero, 2021/2025
  • 116. MÓDULOS HOSPITALARIOS COVID-19
    - , 2020
  • 115. FUNDACIÓN FAVALORO CENTRO CIRUGÍA AMBULATORIA
    - Buenos Aires, 2018/2024
  • 114. HOSPITAL BRITÁNICO CENTRO AMBULATORIO MICROCENTRO
    - Buenos Aires, 2018
  • 113. CENTRO EDUCATIVO TERAPÉUTICO BIARRITZ
    - Buenos Aires, 2017/2019
  • 112. CENTRO EDUCATIVO TERAPÉUTICO MENDEZ DE ANDES
    - Buenos Aires, 2017/2019
  • 111. CENTROS MEDICOS OSPSA
    - Buenos Aires, 2016/2025
  • 110. HOSPITAL TERMAS DE RIO HONDO
    - Termas de Río Hondo, Santiago del Estero, 2016/2019
  • 109. FUNDACIÓN FAVALORO - OBRAS VARIAS
    - Buenos Aires, 2016/2018
  • 108. CENTRO DE REHABILITACIÓN PILAR
    - Pilar, Buenos Aires, 2016/2025
  • 107. CENTRO AMBULATORIO CAMPICHUELO
    - Buenos Aires, 2015/2018
  • 106. CENTROS DE DIAGNÓSTICO POR IMÁGENES
    - Buenos Aires, 2015/2021
  • 105. HOSPITAL UNIVERSITARIO DE LAVRAS
    - Minas Gerais, Brasil, 2015
  • 104. CENTROS AMBULATORIOS FUNDACIÓN FAVALORO
    - Pilar y Buenos Aires, 2013/2014
  • 103. DIAGNÓSTICO LABORAL PILAR
    - Pilar, Buenos Aires, 2013
  • 102. CENTRO INTEGRAL DE SALUD LA BANDA
    - La Banda, Santiago del Estero, 2011/2015
  • 101. HOSPITAL CHURRUCA - VISCA
    - Buenos Aires, 2011/2012
  • 100. HEMOCENTRO DEL MINISTERIO DE DEFENSA
    - Buenos Aires, 2011
  • 99. SANATORIO JUNÍN
    - Junín, Buenos Aires, 2011/2013
  • 98. CENTRO DE MEDICINA PREVENTIVA DEL MINISTERIO DE DEFENSA
    - Buenos Aires, 2010/2011
  • 97. CENTROS REGIONALES DE HEMOTERAPIA
    - Buenos Aires y Santiago del Estero, 2010/2011
  • 96. CENTRO INTEGRAL TRATAMIENTO ENFERMEDAD ALZHEIMER
    - Buenos Aires, 2010/2015
  • 95. HOSPITAL REGIONAL RAMÓN CARRILLO
    - Santiago del Estero, 2009/2015
  • 94. HOSPITAL BRITÁNICO OBRAS VARIAS
    - Buenos Aires, 2009/2012
  • 93. HOSPITAL RIVADAVIA
    - Buenos Aires, 2008
  • 92. HOGAR HIRSCH
    - San Miguel, Buenos Aires, 2008
  • 91. 4 CENTROS DE ATENCIÓN PRIMARIA
    - Buenos Aires, 2008
  • 90. EDIFICIO DE INVESTIGACIÓN MACN
    - Buenos Aires, 2007/2010
  • 89. SANATORIO SAN CAYETANO
    - Buenos Aires, 2007
  • 88. NUEVO HOSPITAL RAWSON
    - San Juan, San Juan, 2006/2008
  • 87. FLENI 2010 SEDE ESCOBAR
    - Buenos Aires, 2006
  • 86. CLÍNICA BESSONE
    - San Miguel, Buenos Aires, 2006/2008 y 2015/2019
  • 85. CENTRO DE REHABILITACIÓN CONCORDIA
    - Concordia, Entre Ríos, 2006
  • 84. CLÍNICA BAZTERRICA
    - Buenos Aires, 2005
  • 83. HOSPITAL MOYANO
    - Buenos Aires, 2004/2006
  • 82. HOSPITAL TOBAR GARCÍA
    - Buenos Aires, 2003/2006
  • 81. HOSPITAL ALVEAR
    - Buenos Aires, 2003/2006
  • 80. HOSPITAL BORDA
    - Buenos Aires, 2003/2006
  • 79. RED DE CENTROS DE SALUD DEL GCBA
    - Buenos Aires, 2002/2003/2004/2005/2006
  • 78. EFECTORES DEL GOBIERNO DE LA CIUDAD
    - Buenos Aires, 2001/2002
  • 77. CET ABRIENDO CAMINOS
    - Buenos Aires, 2000/2001 y 2006
  • 76. HOSPITAL MILITAR CAMPO DE MAYO, INT. GERIÁTRICA
    - San Miguel, Buenos Aires, 2000
  • 75. HOSPITAL PIROVANO SERVICIO DE URGENCIA
    - Buenos Aires, 2000/2002
  • 74. HOSPITAL BRITÁNICO, RECUPERACIÓN DE CAPACIDAD INSTALADA
    - Buenos Aires, 2000
  • 73. HOSPITAL MILITAR CAMPO DE MAYO
    - San Miguel, Buenos Aires, 1999
  • 72. CLÍNICA SAN ISIDRO LABRADOR
    - Chacabuco, Buenos Aires, 1999/2000
  • 71. HOSPITAL DR. GUILLERMO RAWSON
    - San Juan, San Juan, 1998
  • 70. HOSPITAL BRITÁNICO, EDIFICIO ANEXO
    - Buenos Aires, 1998
  • 69. HOSPITALES MATERNIDAD, SANTILLÁN Y DEL NIÑO JESÚS
    - Tucumán, Tucumán, 1998
  • 68. HOSPITAL ITALIANO OBRAS VARIAS
    - Buenos Aires, 1998/1999
  • 67. ESTABLECIMIENTO GERIÁTRICO DON JUAN
    - Adrogué, Buenos Aires, 1997
  • 66. HOSPITAL BRITÁNICO AREAS CIRUGÍA
    - Buenos Aires, 1997/1998
  • 65. POLICLINICA BANCARIA
    - Buenos Aires, 1997/1998
  • 64. HOSPITAL ZONAL DE AGUDOS
    - Junín, Buenos Aires, 1997
  • 63. HOGAR DE ABUELOS
    - Florida, Buenos Aires, 1997
  • 62. CENTRO GALLEGO CONSULTORIOS EXTERNOS
    - Buenos Aires, 1996
  • 61. HOSPITAL PRIVADO DE COMUNIDAD, EDIFICIO ANEXO
    - Mar del Plata, Buenos Aires, 1996
  • 60. RES. GERIÁTRICA ADROGUÉ
    - Adrogué, Buenos Aires, 1996
  • 59. HOSPITAL DR. MARENGO
    - San Martín, Buenos Aires, 1995
  • 58. HOSPITAL ITALIANO, G. QUIRÚRGICO O Y T
    - Buenos Aires, 1995/1998
  • 57. HOSPITAL ARTÉMIDES ZATTI
    - Viedma, Río Negro, 1995/1996
  • 56. HOSPITAL DE CLÍNICAS
    - Buenos Aires, 1995
  • 55. HOSPITAL DE LA MERCED
    - Dep. Paclín, Catamarca, 1995
  • 54. SOCIEDAD ARGENTINA DE ORTODONCIA
    - Buenos Aires, 1995
  • 53. CENTRO SALUD LOS ALTOS
    - Los Altos, Catamarca, 1994/1995
  • 52. POLICLINICO FERROVIARIO
    - Buenos Aires, 1994
  • 51. HOSPITAL DR. MARCIAL QUIROGA
    - San Juan, San Juan, 1994
  • 50. HOSPITAL DR. GUILLERMO RAWSON
    - San Juan, San Juan, 1994
  • 49. HOSPITAL REGIONAL
    - Rio Gallegos, Santa Cruz, 1993/1994
  • 48. SANATORIO LA PEQUEÑA FAMILIA
    - Junín, Buenos Aires, 1993
  • 47. CÍRCULO MÉDICO DE QUILMES
    - Quilmes, Buenos Aires, 1993
  • 46. INSTITUTO MICROB. MALBRÁN
    - Buenos Aires, 1993/1994
  • 45. HOSPITALES DE BUENOS AIRES
    - Buenos Aires, 1993
  • 44. INSTITUTO DE CARDIOLOGÍA HOSPITAL ESPAÑOL
    - Buenos Aires, 1991/1992 y 1996/1997
  • 43. HOSPITAL SIRIO LIBANES
    - Buenos Aires, 1990/1991
  • 42. INSTITUTO NEFROLOGÍA H. ESPAÑOL
    - Buenos Aires, 1989
  • 41. INSTITUTO DE NEFROLOGÍA
    - Buenos Aires, 1989
  • 40. HOSPITAL ESPAÑOL
    - Buenos Aires, 1988/1989/1990 y 1995/1996
  • 39. CLÍNICA PASTEUR
    - Neuquén, Neuquén, 1988
  • 38. HOSPITAL PRIVADO
    - Florida, Buenos Aires, 1987
  • 37. CLÍNICA SALAS
    - Luján, Buenos Aires, 1986
  • 36. CLÍNICA ARANZAZÚ
    - San Fernando, Buenos Aires, 1986
  • 35. FUNDACIÓN CASAGRANDE
    - Ramos Mejía, Buenos Aires, 1985
  • 34. FUNDACIÓN PARA LA SALUD
    - Villa María, Córdoba, 1985
  • 33. SANATORIO DEL NORTE
    - Corrientes, Corrientes, 1985
  • 32. HOSPITAL MUNICIPAL
    - Vicente López, Buenos Aires, 1984
  • 31. SANATORIO MARIAZELL
    - Junín, Buenos Aires, 1983/1985
  • 30. UNIDAD ASISTENCIAL AMBULATORIA
    - Buenos Aires, 1981
  • 29. FUNDACIÓN FAVALORO
    - Buenos Aires, 1979/1985
  • 28. HOSPITAL VERTICAL
    - Mar del Plata, Buenos Aires, 1979/1980
  • 27. CLÍNICA RADIOLÓGICA SUR
    - Cipolleti, Río Negro, 1978/1979
  • 26. UNIDAD ASIST. AMBULATORIA
    - Avellaneda, Buenos Aires, 1977
  • 25. POLICLÍNICA CENTRAL DEL SMATA
    - Buenos Aires, 1976
  • 24. POLICLÍNICA CENTRAL EMP. DEL PLÁSTICO
    - Buenos Aires, 1976
  • 23. CLÍNICA CIUDADELA
    - Ciudadela, Buenos Aires, 1976/1977
  • 22. CLÍNICA MODELO
    - Lanús, Buenos Aires, 1976/1980 y 1993
  • 21. UNIDADES ASISTENCIALES SISTÉMICAS
    - --, 1975
  • 20. HOSPITAL FRÍAS
    - Frías, Frías, 1975
  • 19. SANATORIO T. MUNICIPALES
    - Avellaneda, Buenos Aires, 1974
  • 18. POLICLÍNICA SEGUROS Y REASEGUROS
    - Buenos Aires, 1974
  • 17. POLICLÍNICO REGIONAL UOM
    - Avellaneda, Buenos Aires, 1974/1976 y 1981/1984
  • 16. HOSPITAL CAJA PETROLERA
    - La Paz, 1974
  • 15. CEMIC
    - Buenos Aires, 1974
  • 14. HOSPITAL RAMÓN SANTAMARINA
    - Tandil, Buenos Aires, 1973
  • 13. HOSPITALES YPF
    - Mendoza y Buenos Aires, 1972
  • 12. HOSPITAL REGIONAL
    - C. Rivadavia, Chubut, 1972
  • 11. POLICLÍNICA RAFAELA
    - Rafaela, Santa Fe, 1972
  • 10. POLICLÍNICA YPF CALLE URUGUAY
    - Buenos Aires, 1972
  • 9. POLICLÍNICO HIPASAM
    - Sierra Grande, Río Negro, 1972/1974
  • 8. PUESTOS SANITARIOS YPF
    - Santa Cruz, 1971
  • 7. HOSPITAL PRIVADO HOMERO II
    - Buenos Aires, 1971
  • 6. POLICLÍNICO ANDOS
    - Neuquén, Neuquén, 1971
  • 5. HOSPITALES YPF V
    - Santa Cruz, Chubut, Neuquén y Salta, 1971
  • 4. CENTRO INTEGRAL MÉDICO ASISTENCIAL
    - Junín, Buenos Aires, 1971
  • 3. CLÍNICA ALVEAR
    - San Nicolás, Buenos Aires, 1970
  • 2. INSTITUTO DE RADIOLOGÍA
    - Mar del Plata, Buenos Aires, 1970
  • 1. HOSPITAL PRIVADO DE COMUNIDAD
    - Mar del Plata, Buenos Aires, 1965/1967

TAMBIÉN PARTICIPAMOS EN:

DOCENCIA:

Posgrado Proyecto de Edificios para la Salud FADU | UBA | AADAIHLeer más

Posgrado El Edificio para la Salud y el Diseño de sus Áreas FAU UNLPLeer más

Curso de Pós Graduação em Arquitetura Hospitalar IAHCS Porto Alegre, Brasil.Leer más

Curso de Especialización Arquitetura para a Saúde PUC Río de Janeiro, Brasil.Leer más

Maestría en Ingeniería Biomédica Universidad Favaloro.Leer más

LIBROS:

Edificios para la Salud. Una experiencia de Investigación Proyectual. IRIGOYEN, M. y MONZA, L. (Editores). Los Libros del Posgrado FADU UBA, Buenos Aires, Argentina, ISBN 978-987-4160-86-7, 2021. Leer más

Sustentabilidade e Humanização em um Centro de Reabilitação. IRIGOYEN, M. y MONZA, L. en Arquitetura e Urbanismo: Compromisso Histórico com a Multidisciplinaridade, MAFRA MIGLIORINI, J. (Organizadora). Atena Editora, Ponta Grossa, Paraná, Brasil, ISBN 978-65-5706-476-4, 2020. Leer más

Healthcare Facilities in Times of Radical Changes. Proceedings of the 23rd Congress of the International Federation of Hospital Engineering. DEL NORD, Romano (Organizador), FONT, L. y MONZA, L. (Co-organizadores). TESIS, University of Florence, Italy, ISBN 978-88-907872-6-3, 2015. Leer más

Arquitectura para la Salud en América Latina. BITENCOURT, F. y MONZA, L. (Organizadores). Río Books, Brasilia, Brasil, ISBN 978-85-9497-014-5, 2017. Leer más


OTRAS PUBLICACIONES:

2022 Sustainability and Humanization in a Rehabilitation Health Care Center IFHE Digest 2022 páginas 50 a 54 Leer más

2022 De la Arquitectura Hospitalaria a la Arquitectura para la Salud Revista IPH Nº 19 páginas 124 a 135 Leer más

2022 Cambios en Conceptos y Criterios Proyectuales de la Arquitectura para la Salud a partir de la Pandemia de Covid 19 FADU UBA Leer más

2021 Hospital Modules for Treating Covid-19 Cases IFHE Digest 2021 páginas 63 a 65 Leer más

2020 Los Arquitectos Opinan Revista Todo Obras Leer más

2020 Arquitectura para la Salud en función de la pandemia de COVID 19 Posgrado Proyecto de Edificios para la Salud FADU | UBA | AADAIH. Leer más

2019 Reducing hospital cost through better design Tesis - UIH - UIA PHG Leer más

2019 ArquiSalud Una visión actual de la arquitectura hospitalaria Revista Todo Obras Leer más

2014 Trayectoria Especializada Guth Irigoyen Monza Revista Todo Obras Leer más

Futuro dos Edifícios para a Saúde: Principais Tendencias. Revista Arquitetura & Saúde Leer más

2018 Designing Buildings for People with Alzheimer´s. Revista IFHE Digest 2018 Leer más

2019 A Look at the Evolution of Healthcare Provision. Revista IFHE Digest 2019 Leer más


ANUARIOS AADAIH DONDE PARTICIPAMOS:

2022 - La Biofilia y los Jardines Terapéuticos. Leer más

2020 - Módulos Hospitalarios para Covid 19. (Págs.70/75) Leer más

2019 - Informe Especial: Aparición y desarrollo de los edificios para la atención de pacientes ambulatorios. (Págs.104/105) Leer más

2017 - Edificios específicos para nuevas patologías: El caso de la enfermedad de Alzheimer (Pags. 46/51) Leer más

2016 - Visitas técnicas en Holanda durante el Congreso del IFHE. (Págs. 20/26) Leer más

2015 - Un viejo anhelo cumplido. (Págs.144/148) Leer más

2014 - Palabras de bienvenida, un gran momento de intercambio y encuentro. (Págs. 2/14) Leer más

2013 - Centro Integral de Tratamiento para la Enfermedad de Alzheimer ( Págs. 14/17) Leer más

2012 - Un paneo por la arquitectura en Salud Argentina en los últimos 10 años. (Págs. 6/7) Leer más

2011 - Futuro de los edificios para la salud: Principales tendencias. (Págs. 94/97) Leer más

2010 - Proyecto de planificación participativa del Recurso Físico en Salud. (Págs. 70/73) Leer más

2009 - Servicio de Urgencia Hospital Pirovano de Buenos Aires. (Págs.104/106) Leer más

2007 - Nota: ¿Por que? y ¿Cuando? (Preguntas sobre el lugar y el rol del Recurso Fisico en Salud). (Págs 18/20) Leer más


ASOCIACIONES:

International Federation of Hospital Engineering (IFHE)Ir al Sitio

Asociación Argentina de Arquitectura e Ingeniería Hospitalaria (AADAIH)Ir al Sitio